On the Boards
A behind the scenes look at some of the interesting projects we are currently working on.
All the services you need, in one place
We have what it takes to bring your project to fruition
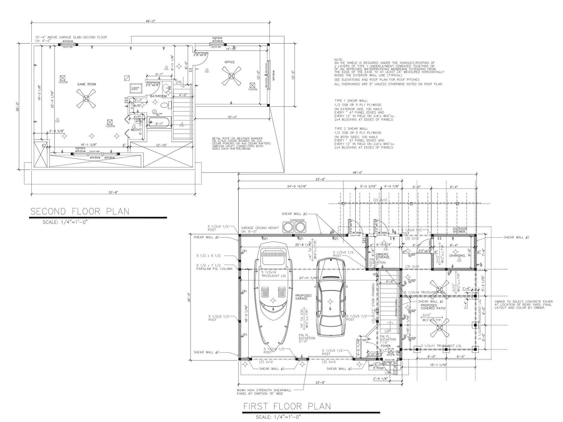
Villas, NJ - This client started with an existing house on an oversized plt of land in the heart of town, just blocks from the Bay. With the purchase of this residence, the goal is to turn it into a vacation house for a large family, complete with play room, pool, and covered tiki-bar.
The program is two phases = the first is to renovate the existing house and increase its street appeal with the addition of covered porches at both the front and rear of the house.
Phase 2 is the construction of the game room above a two car garage, covered tiki bar, pool cabana and an in-ground swimming pool.
Moving to a new Home + addition to make it perfect .
Villas, NJ -
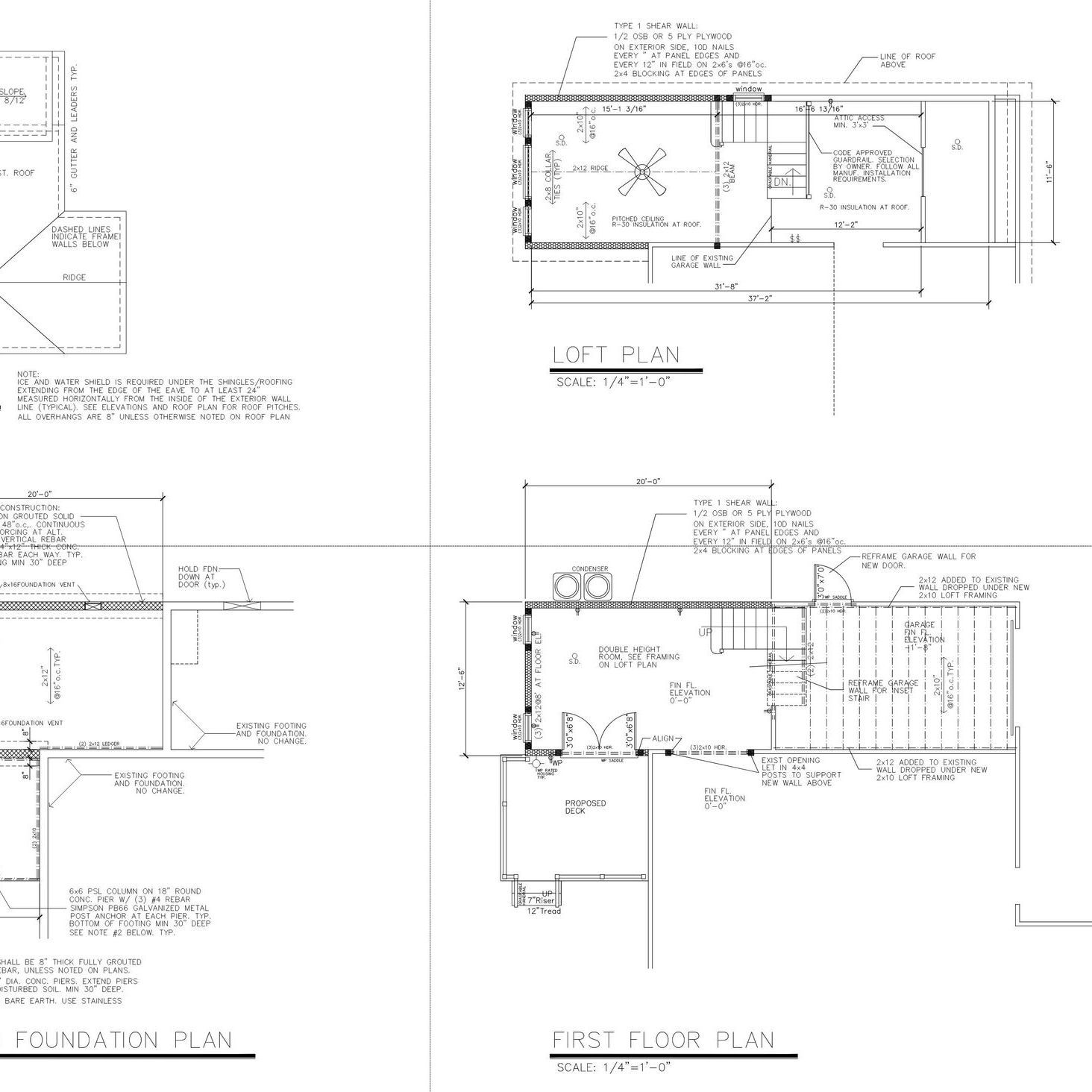
Wanting to be closer to the Bay and the golden sunsets, this couple moved from another part of town into this residence. With an addition to the family room and the creation of a loft, this modest house will greatly increase the living space needed for their family.
Outdoor covered patio and new deck enhance outdoor living experience.
Villas, NJ -
This project is an existing house that will be renovated with all new finishes, kitchen cabinets, bathrooms, windows, heating and plumbing.
The client is also adding several decks and a covered patio for entertaining.
Villas VFW - Kitchen addition
Villas, NJ -
A much needed kitchen addition will allow the VFW Villas post #5343 Buddy lewis Veterans Home to offer an enhanced menu and food options for the areas veterans.
Adaptive
Re-use
Villas, NJ -
An existing storage shed has been rebuilt into an office and with much needed storage for the owners commercial property.




















